
郑州四环内主城,改善迎来全面爆发
一直以来,郑州最缺的房子,就是改善住宅。而这一点,从今年下半年到明年将发生根本性的变化,这一变化来源于今年郑州的土拍。

郑州6.3集中土拍(来源于网络)
6月初郑州今年首次集中土拍,除了一定程度提高购房者对市场上行的预期之外,还会带来两个分化:
a、刚需远郊化、改善主城化
目前郑州主城价格越来越高,且诞生的项目定位也越来越高,让刚需加速外溢到三环外,乃至四环外是一个不可忽视的现实。
此消彼长,从今年下半年到明年,郑州将有新一波改善盘入市,它们集中在主城区,都在四环内,主城全面改善时代来临。
b、郑州市场价格体系的支撑力量的转变
一直以来,价格2-3万/平价格区间的改善盘数量很少,甚至低于郑州豪宅数量,目前这一局面正在扭转,并全面主城化!
更关键的是,随着过去横盘三四年导致的结果是,刚需购买力不断下降,而改善产品不仅逆势热销且价格上涨。
比如,去年恒大云玺首开即清盘、昆仑望岳二期相比一期大幅涨价、万科山河道半年几乎清盘……
今年,郑州四环主城内在售或将入市的改善产品,产品设计、细节打造都达到了一个新的高度,价格也将全面突破20000+元/平。
所以未来2年,改善产品将成为郑州市场价格体系的支撑力量。

新时期的改善购房观,被大多数人忽略
从今年下半年到明年,郑州新一波改善盘入市,主要分布在北龙湖、杨金片区、高铁片区、金水北、惠济核心区、经开老城区,总计6个区域。那么,改善置业该怎么选?

郑州新一波儿改善盘分布图
相信很多改善群体置业,都会非常重视区域价值,比如不少人买白沙,就是看重这片区域的未来。
而我们今天抛开过往看法,从一个比较新颖的角度来看,寻找价值最好的区域和它的最近区域。不得不提的便是限价这一政策,让价值好的区域和价值一般的区域价格差距缩小。
这恰恰是一个好机会:在这一政策依然执行的当前,买那些价格被抑制的高价值区域+买区域中引领片区产品品质的项目,无疑是最优选择。
环顾郑州城市各个区域,价值最高的区域自然是北龙湖——这是我们给出的第一个建议。
作为郑州房价珠峰之地,在2021年上半年,南岸房源急剧减少,纯洋房社区单价普遍5万起步,而伴随着6月24日郑东新区管委会公示了《郑东新区中原科技城龙湖片区控制性详细规划》,北龙湖南北两岸,剩余最后的41块住宅用地揭开面纱。业内人士普遍认为,41块住宅地不会冲击北龙湖房价,只会继续上涨。其中,北岸定位中原科技城,拥有与南岸不同的定位与气质,高精尖产业大量集中加上新增不少地块,更像是一张正在绘就的蓝图,价值不断上涨。

北龙湖效果图
但目前无论南北两岸房源都很少,那么就买距离北龙湖最近的片区,近距离享受未来发展带来的红利——杨金片区。

北龙湖北岸效果图

杨金区位示意图
这是我们给出的第二个建议。
目前杨金区域已是大变样:
北龙湖北、低密、限高,主打改善,这是一直以来的特色。同时,万科、碧桂园、金科、蓝城、永威、美盛、康桥、天伦、益通以及下半年将进场的正弘、禹州等品牌房企进驻,并且受北龙湖热度传导,目前在售项目均涨价,1500-4000元/m²的涨幅不亚于管南。另外了解到,郑州地铁6号线或将北延杨金,这将是重大利好。
实探完杨金区域后,我们认为在区域内距离北龙湖最近,且引领了区域产品品质的项目,当属龙居华府。

北龙湖是郑州的宠儿,那谁最受北龙湖宠爱?
龙居华府位于龙沄路与龙湖外环路交汇处北1KM。

龙居华府区位图
项目西侧紧邻的龙沄路、龙源路和东侧的明哲路,距离北龙湖仅1KM、距离北龙湖金融岛仅2.5KM,享受一级资源辐射,也直接连通了郑东新区CBD,由此形成了“CBD-北龙湖-杨金”这样的黄金价值传导链。

龙居华府距北龙湖仅1KM
与北龙湖之间通勤距离最短,龙居华府也能便享北龙湖千亿级顶豪资源,最受北龙湖宠爱:

龙居华府周边配套示意图
论教育?
有北龙湖高端教育第一方阵环伺,清华附中、上海师范大学附中、枫杨外国语以及区域内40所学校,还有一所规划中的重点中学就在项目一侧。

清华附中实拍图
论商业?
有龙湖新天地、龙湖运河里、龙湖六星级酒店群、龙湖国际会议中心、龙湖南里/北里等国际商业旗舰近在咫尺。

龙湖里商业中心
论医疗?
项目往南4公里就是郑大一附院郑东院区,直线距离6公里就是河南省儿童医院、郑州颐和医院,让业主身心健康更有保证。

郑大一附院郑东院区
这样优越的地段,龙居华府的开发商——拥有23年开发历史的郑州老牌房企益通置业,堪称郑州楼市的“踩点大师”。
据悉,益通置业成立于1998年,截止目前已经拥有20余年房地产开发经验,属于本土老牌房企,累计开发量达到100余万方,现服务近万户业主。
益通置业目前已交付的代表项目有:农业路金二环的百万方大盘九龙城——九龙国际、天誉龙邸等等,均为主城核心稀缺品质项目,就目前居住体验和服务来看均属上乘品质,且二手房的价格也高于周边,这背后是益通置业对自身品牌、口碑的重视与积累。
从2020年开始,益通置业进行全新战略升级,创造品牌更好、品质更高、服务更优的新供给。除了选址力,益通置业更不计成本投入,全力打造高端府系产品——龙居华府。
在2020年12月12日夜,龙居华府产品发布会盛启携手摇滚巨星汪峰,于郑州国际会展中心怒放开唱,点燃郑州冬夜里的一把火!

龙居华府产品发布会携手摇滚巨星汪峰
据了解,龙居华府项目总占地400余亩,分四个地块,除了目前在售的一期外,还有3个储备地块,下半年益通置业将拿二期地块,所以在售的一期绝对会打造成品质标杆。

这个项目,拥有碾压式的品质竞争力
我们先来看龙居华府一期的基础信息:
占地约66亩,容积率2.49,共规划11栋16层小高层,建筑风格为新中式,推出建面约89-143m²,层高3米,包含两房、三房、四房,其中大户型占整体房源比例高达85%,一股纯粹的改善气息已扑面而来……

龙居华府一期鸟瞰效果图

龙居华府一期大门效果图
——不,这还不够,同区域内碾压式的品质竞争力还不止于此。
郑州市场常见的住宅项目外立面,通常都是少部分选用干挂石材,便已对外宣传“品质”,而在龙居华府,外立面通体全为天然干挂石材,并镶嵌龙纹雕花,造价比真石漆高出10余倍,但这样的外立面将历经岁月也依然崭新亮丽,不仅实用,还具有很强的观赏价值。

龙居华府效果图
这一点,在整个杨金区域,只此一家。与此同时,龙居华府还有多个区域唯一性:
1、项目坐拥一线水岸风光
龙居华府向南3公里即是龙湖湖心水域,面积相当于52.5个CBD如意湖。
同时,项目西邻慧城明渠滨水景观带,约90米宽,面积约34亩;南侧一路之隔的杨金明渠滨水景观带约80亩,共计约126亩。
可以说,居住在此不论是驻足停歇或是身心放松,都可以感受到生活和自然的完美结合,给你良好地生态居住环境。
2、项目是区域唯一全赠送私家电梯厅
5-9平方米私家门厅电梯入户,户户均有;

项目私家门厅电梯入户
3、项目是区域唯一标配一梯一户设计
居住舒适度、生活私密性均有了很好的保证;
4、项目是区域唯一豪华三层精装大堂
首层单元入口大堂、地下两层大堂全部精装,与五星级酒店比肩;

三层精装大堂效果图
5、项目是区域唯一两层精装地下车库
精装两层地下停车场,让你归家停车也有尊贵体验。

精装车库效果图
……
……
正因为龙居华府定位品质改善,关于户型,再仔细看,你会发现惊喜:

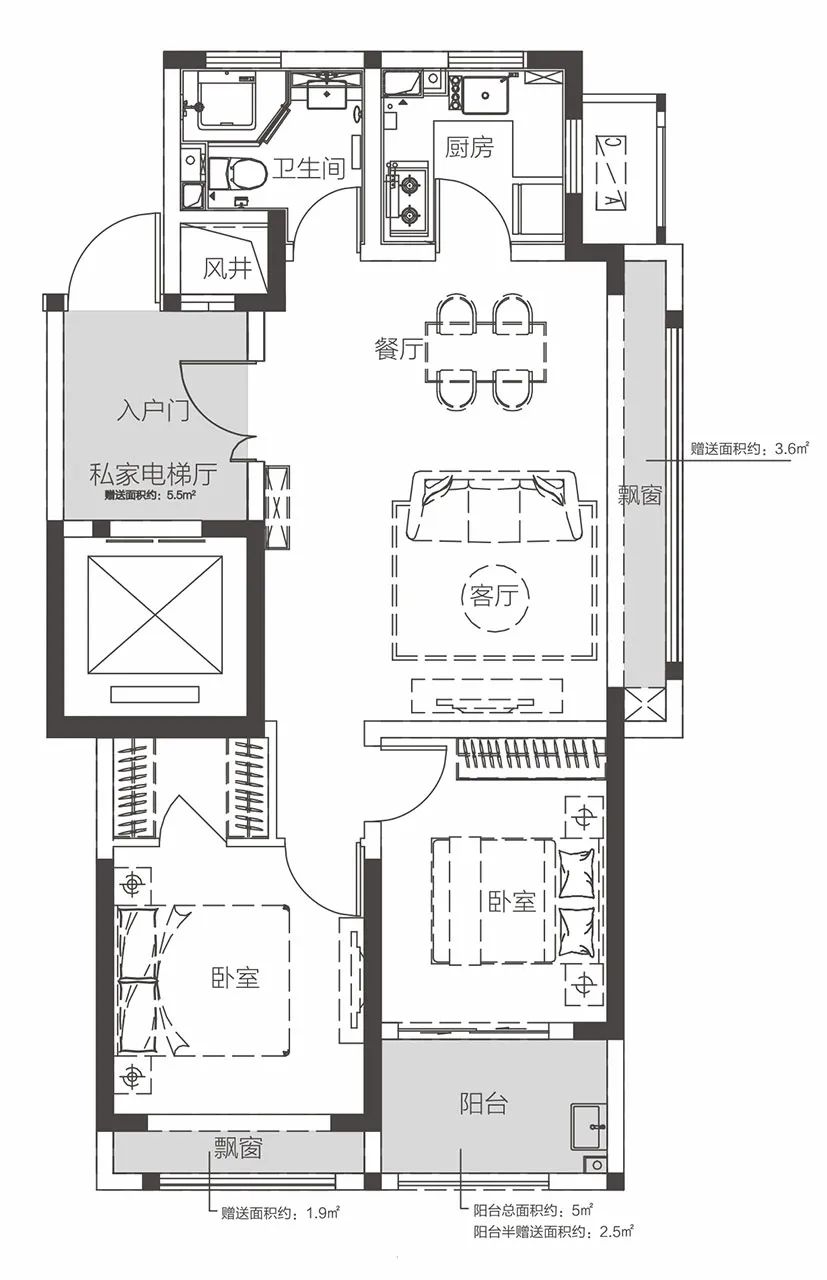
建面约89平两房户型图
项目建面约89平户型没有做成小三房,而是做成了大两房,客厅拥有5.7m宽飘窗、主卧宽阳台、全明厨房、卫生间干湿分离,该户型在项目房源中占比较少,但整体居住舒适度很高。

建面约122平大三房户型图
这是建面约122平大三房,室内三开间朝南、主卧套房设计有独立卫生间,大面宽客厅直通宽景阳台,且次卧外接约11.4m²超大阳台,此外还有约16.6m²的赠送面积,整体设计很用心。

建面约142平的四房两厅两卫
最后是建面约142平的四房两厅两卫,首先是拥有270°采光视野,属于全明户型。配置双套房卧室,这一点在郑州市场上十分少见,两个卫生间也分担家中成员洗漱压力;同时,客厅餐厅一体化,空间感十足、动线也流畅。还有一大亮点便是该户型尺度阔绰,赠送面积约16.6m²,约13m南向三面宽、5.5m阔绰宽厅,更具有大家风范。
仅这样尺度的阳台,你不仅可以用来闲沏茶、晒暖儿、观景儿,也可浇水照料那些花儿,成为你一天当中最治愈的时光。
该户型尺度阔绰、设计合理,适合三代同堂,也适合三胎时代。
在现场看到,龙居华府全为精装交付,在样板间里可以看到全为一线品牌,4000元/m²的标准下,是德式装甲入户门——梵蒂斯、科勒卫浴、老板油烟灶具、西门子洗碗机等,户户配置中央空调、新风系统、全屋地暖。此外还有,全屋壁布交付、卧室实木地板、智能家居系统等。

项目精装样板间实拍图
很明显,龙居华府的精装丝毫不亚于北龙湖豪宅的精装配置,更成为区域众多项目的领头羊!
在工作人员的介绍下,我们来到龙居华府的景观示范区,首先看到的是一棵苍劲有力、气势挺拔的迎客松,树龄近30余年,象征健康长寿、福气满堂,其与水景幕墙遥相呼应,仿佛在静等龙居华府的业主们归家。
此情此景,让人不由得憧憬成为龙居华府业主迎来交付的那一天:
据了解,整体小区交付时,大堂材料为全天然石材加深棕色金属板,同时在大门对景墙及大门顶部都设有小区专属的鉴章纹及小区案名,顶部采用钢架格栅设计,同时加盖玻璃顶。对此,工作人员介绍到,“当阳光将顶部‘龙居华府’的鉴章纹投射到入口地面,随时间变化逐步移动,那是一个非常美好的景象”。
由此可见,龙居华府为了打造品质标杆,真是花了大价钱了。

我正从龙居华府经龙沄路,开往北龙湖
郑州集中土拍入市的改善新盘,基本以四环内主城为主。
这也符合城市发展规律,在过去多年间郑州一直向外扩张,不断衍生出一个又一个新区。但,城市绝不会无休止扩张,到了一定阶段后必然会向内收缩,四环内主城必然价值隆起。

郑州各个区域分布图
这是城市进化的特点。
而虽然都是四环内主城,每个区域价值又有高低之分,其中有“中原陆家嘴”之称的北龙湖绝对是第一价值高地,而南岸价格高企、北岸价值不断上涨,给改善人士更多置业机会的,无疑是能够享受到北龙湖资源、需求、价值都一系列发展红利的杨金区域——一路之隔,真的好近,这里定位改善属性,目前已起风……
在一条通往北龙湖的龙沄路上,另一端便是龙居华府,引领区域内品质,成为当前郑州改善人士的梦想居所,亦是他们沉淀资产的不二之选。
如此性价比的改善楼盘,如此潜力巨大的价值高地,如此高品质的生活,在未来2年郑州市场格局已经提前确定的情况下,提前入手龙居华府,占位更大的红利。

龙居华府效果图
2021年上半年已经结束,下半年已经开始,不要错过。